YvonLeBlanc Website Design and Content © by Eric Krause, Krause House Info-Research Solutions (© 1996)
All Images © Parks Canada Unless Otherwise Designated

  Researching the Fortress of Louisbourg National Historic Site of Canada
  Recherche sur la Forteresse-de-Louisbourg Lieu historique national du Canada

Yvon LeBlanc Site

Contributions: Louisbourg Institute and Yvon LeBlanc

© Yvon LeBlanc

YVON LEBLANC~ PHOTO/DRAWING GALLERIES ~ARCHITECTURE AND RECONSTRUCTION OF THE FORTRESS OF LOUISBOURG (1713-1983) 

BACK
 

OVERALL VIEWS OF LOUISOURG ARCHITECTURE FROM FOUNDATION TO PARTIAL RECONSTRUCTION AS  BEFORE 1745 SIEGE 
To see a larger view of a picture, please click on it 
Please hover over the image for the caption to appear

OVERALL VIEW ONE

Plate 1            Plate 6         Plate 7         Plate 8            Plate 21

 

Plate 2



Plate 3

Plate 4

 

1717-1983 (Coloured portion) rebuilt section as before the 1745 Siege. "Louisbourg Isle Royale (Cape Breton N.S. Canada) Architecture 1717 - 1754 / Fortifications 1719 - 1758 / Démolition 1760 / Reconstruction 1960 - 1983 / By Yvon LeBlanc, Architecte à Louisbourg 1972 - 1983"

 

Plate 22


Plate 23


Plate 24

 

       Plate 5      Plate 18        Plate 19         Plate 20     Plate 25  

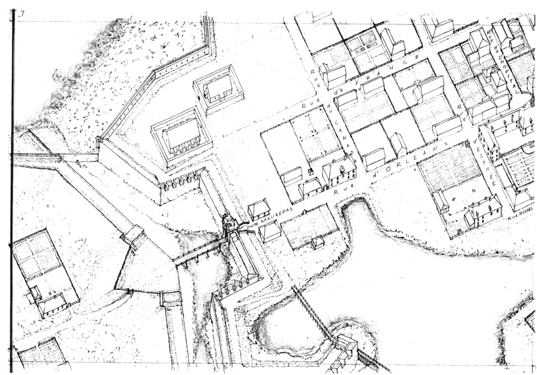
Note: Plates 9-17 are in the centre portion labelled from left to 
right: i.e top (9-11), middle (12-14), bottom (15-17)
© Yvon LeBlanc

Key to the Plates


OVERALL VIEW TWO

LOUISBOURG  1720-1758 / 1961-1983, Architecture - Reconstruction, Yvon LeBlanc architecte à Louisbourg de 1972 à 1983

Cover

Vue aérienne / Aerial view (Vue à vol d'oiseau /birdseye view)

Vue aérienne / Aerial view (Vue à vol d'oiseau /birdseye view) Vue aérienne / Aerial view (Vue à vol d'oiseau /birdseye view)
Plate 1       Plate 2       Plate 3
Vue aérienne / Aerial view (Vue à vol d'oiseau /birdseye view) Vue aérienne / Aerial view (Vue à vol d'oiseau /birdseye view) Vue aérienne / Aerial view (Vue à vol d'oiseau /birdseye view)
Plate 4 Plate 5 Plate 6
YvonPlate7.jpg (192590 bytes) Vue aérienne / Aerial view (Vue à vol d'oiseau /birdseye view) Vue aérienne / Aerial view (Vue à vol d'oiseau /birdseye view)
Plate 7 Plate 8 Plate 9
Vue aérienne / Aerial view (Vue à vol d'oiseau /birdseye view) Vue aérienne / Aerial view (Vue à vol d'oiseau /birdseye view) Vue aérienne / Aerial view (Vue à vol d'oiseau /birdseye view)
Plate 10 Plate 11 Plate 12
Vue frontale / Frontal view; Autres / Other Fortifications;  Photos (Silhoutte / skyline, autres / other fortifications, photos) Vue frontale / Frontal view; Autres / Other Fortifications;  Photos (Silhoutte / skyline, autres / other fortifications, photos) Vue frontale / Frontal view; Autres / Other Fortifications;  Photos (Silhoutte / skyline, autres / other fortifications, photos)
Plate 13 Plate 14 Plate 15
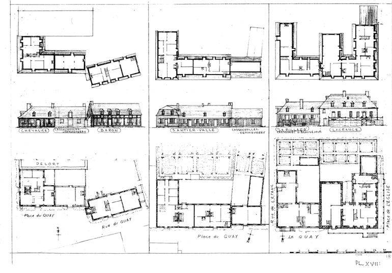
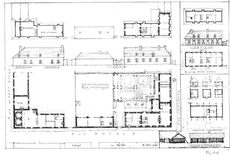
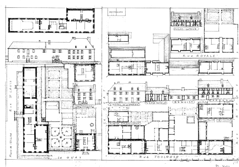
Ingénieur Verrier, Lartigue, Faubourg Dugas-Latour, Carrerot, Benoit, Epée Royale, Hôtel de la Marine, Auberge Grandchamp, Pugnant dit Destouches, Commissaire-Ordonnateur (Bigot) Lagrange, Le Billard, Cassagnoles-Detcheverry, Santier-Vallée, Baron, Chevalier
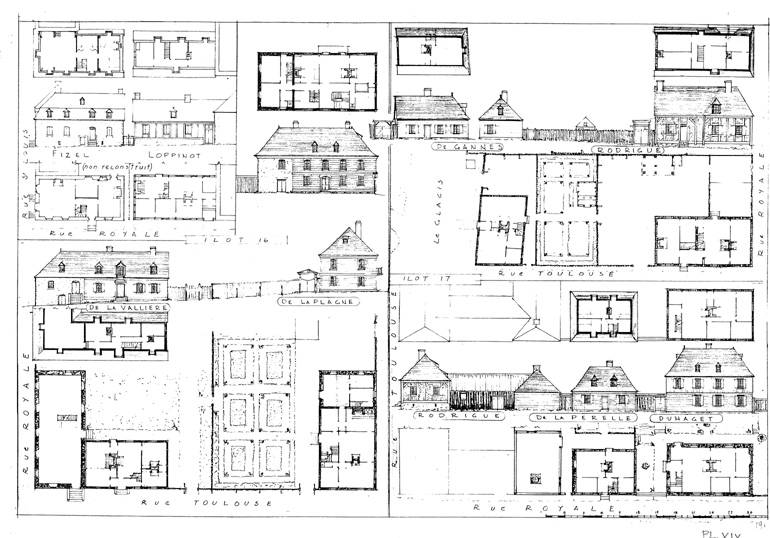
Plate 16 Plate 17 Plate 18

La Plagne, La Vallière, De Gannes, Rodrigue, La Pérelle, Duhaget

     

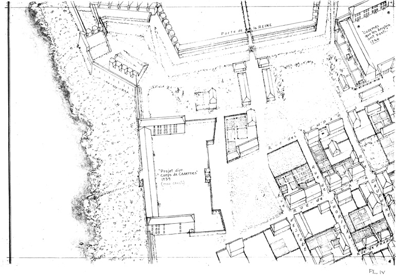
Casernes du Bastion du Roi / King's Bastion Barracks

Plate 19

Plate 20

 


OVERALL VIEW THREE

If the Entire Town had been Reconstructed to the Year 1745 ~ Parks Canada, Fortress of Louisbourg, Lsbg1cp.jpg

1744 Reconstructed Buildings as of 1977 ~ Parks Canada, Fortress of Louisbourg, Lsbg2cp.jpg

If the Entire Town 
had been 
Reconstructed 
to the Year 1745 

 

      

Reconstructed 
Buildings as of 1977 

© Parks Canada


OVERALL VIEW FOUR

Louisbourg 1745 / Reconstructed 1960-1983

Louisbourg 1745 / 
Reconstructed 1960-1983

© Yvon LeBlanc