FortressImages Website Design and Content © by Eric Krause, Krause House Info-Research Solutions (© 1996)
All Images © Parks Canada Unless Otherwise Designated
Report/Rapport © Krause House Info-Research Solutions

  Researching the Fortress of Louisbourg National Historic Site of Canada
  Recherche sur la Forteresse-de-Louisbourg Lieu historique national du Canada

FORTRESS OF LOUISBOURG PROPERTIES

41 - 50 

Description

Jpeg Format

 

Pcx Format

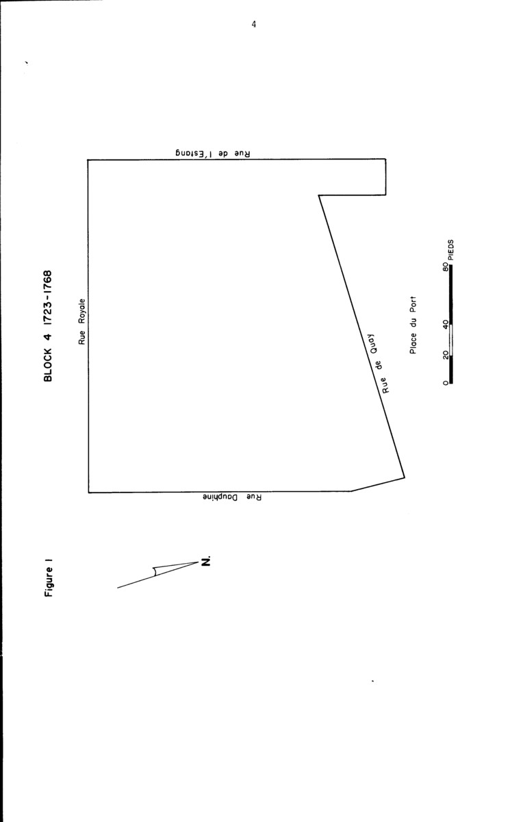
Block 4, 1723 -1768 (figure 1)

8045.jpg (36688 bytes)

.

. .   .
Block 4 Properties, 1734 (figure 2) 8050.jpg (47290 bytes) .
. .   .
Block 4, Lot B, 1743 - 1758 (figure 3) 8066.jpg (45025 bytes) .
. .   .
Block 4, Lt B Buildings, 1713 - 1768 (figure 4) 8074.jpg (54387 bytes) .
. .   .
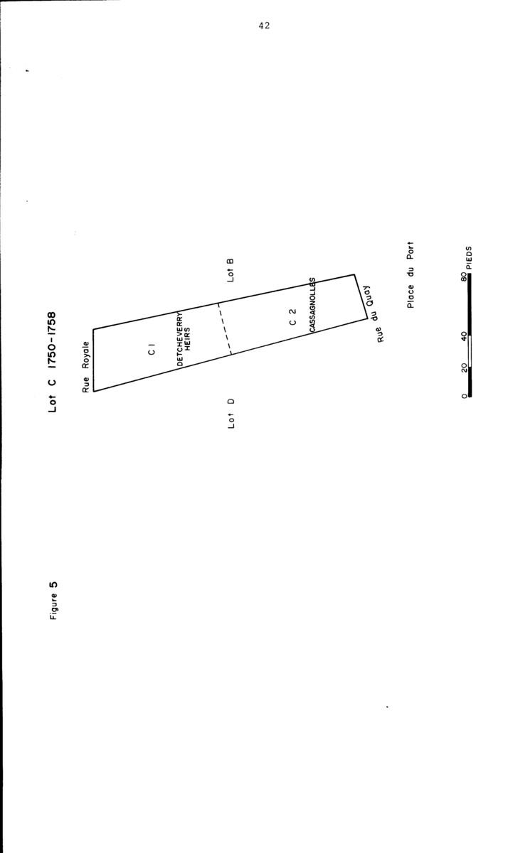
Block 4, Lot C, 1750 - 1758 (figure 5) 8083.jpg (33453 bytes) .
Block 4, Lot C  Buildings, 1713 - 1751 (figure 6) 8087.jpg (47635 bytes)  
. . . .
Block 4, Lot C  Buildings, 1751 - 1768 (figure 7) 8091.jpg (52453 bytes)  
. . . .
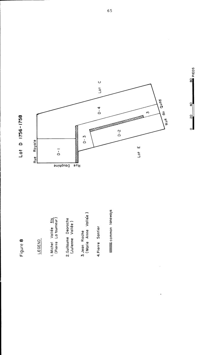
Block 4, Lot D, 1756 - 1758 (figure 8) 8106.jpg (50513 bytes)  
. . . .
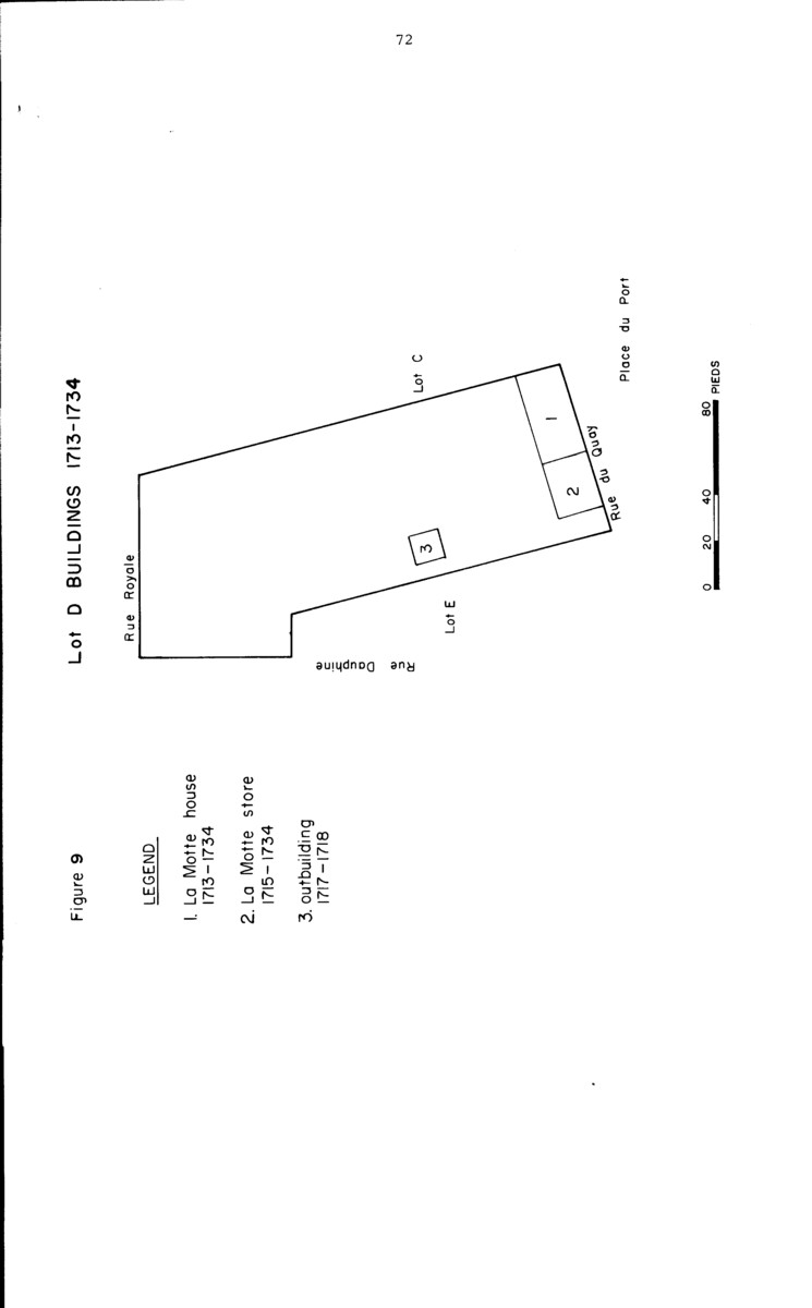
Block 4, Lot D Buildings, 1713 - 1734 (figure 9) 8113.jpg (45156 bytes)  
. . . .
Block 4, Lot D Buildings, 1734 - 1768 (figure 10) 8116.jpg (55278 bytes)