IslandBattery
Website Design and Content © 2005 by
Eric Krause, Krause House Info-Research Solutions
(© 1996)
All Images © Parks
Canada Unless Otherwise Designated
Researching the Fortress of Louisbourg National Historic Site of
Canada ~ Recherche sur la Forteresse-de-Louisbourg Lieu historique national du
Canada
Search All Sites/All Menus ~
Cherche Tous les Sites/Tous les Menus
L o u i s b o u r g ' s
![Joseph F.W. Des Barres, A view taken from the entrance of Louisbourg Harbour [Library and Archives of Canada-NMC 028432]](../images/DesBarresAtlanticNeptune_1778_1.jpg)
I s l a n d B a t t e r y
INDIVIDUAL
CONSTRUCTIONS AT THE ISLAND BATTERY, 1713-1768:
DETAILED INTERPRETATIONS
THE GUARD HOUSE - 1744
LINDSAY
[Charles S. Lindsay, "Louisbourg Guardhouses" in Canadian Historic Sites,
Occassional Papers in Archaeology and History No. 12 National Historic
Parks and Sites Branch, Indian and Northen Affairs,
... Battery Island Barracks Guardhouse
Initially it was intended that the guardhouse for Battery Island be incorporated within the barracks. It is shown as such on some early plans, one showing it with a porch along the north side. However, it was later decided to erect a separate guard-house, which was built at the same time as a bakery in 1744 [16]. It is almost impossible to be sure exactly where this guardhouse was situated. Evidence from historical plans is slight, confusing and contradictory. Documentary evidence shows that the building was attached to the barracks, and one painted view and a few later vague sketches show some sort of addition to the south side of the barracks (Fig 17).
|
17. Painting of Battery Island entitled "The Taking |
According to the toisé drawn up to account for work done on the guardhouse in 1744, the building was divided into soldiers' quarters and cell. The officer presumably continued to reside in the barracks.
In the toisé total lengths of materials were given instead of individual units. Consequently much of thefollowing is an interpretation of the probable wall lengths, rafter spacing and so on. A further complication is that the toisé included materials for the bakery. From the intermingling of items of both buildings it would seem that they were contiguous.
Six items in the toisé suggest the size and arrangement of the two buildings.
| (1) | Foundations of the cell and guardhouse including the dividing wall: |
| Total length, 52 pieds | |
| Thickness, 1 pied 6 pouces | |
| Average height, 1 pied 6 pouces | |
| (2) | Floor of guardhouse: |
| Length, 15 pieds | |
| Width, 9 pieds | |
| (3) | Ceiling of guardhouse, cell and bakery: |
| Length, 32 pieds | |
| Width, 24 pieds | |
| (4) | Plank revetment around the bakery, guardhouse and cell: |
| Total length: 33 pieds | |
| Average height, 8 pieds | |
| (5) | Foundation for the bakery: |
| Total length, 64 pieds | |
| Thickness, 1 pied | |
| Average height, 1 pied | |
| (6) | The hip: |
| Average width, 12 pieds 6 pouces (half the width of the roof) |
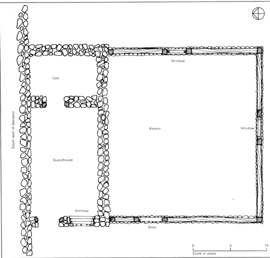
From the dimensions given for the ceiling we know that the building was approximately 24 pieds wide, and 32 pieds long. Elsewhere in the toisé we find that there was only one hip on the roof, so most likely the long axis was at right angles to the adjoining barracks. With this information and, in addition, interpretation of the phrase "les deux faces de la Boulangerie du Corps de Garde et de la Prison joignt. les cazernes" to mean that the cell and probably also the guardhouse were immediately adjacent to the barracks, it is possible to draw up a reasonably accurate plan of the two buildings (Fig. 18.)
|
18. Hypothetical ground plan of the Battery Island |
The only arrangement that can satisfy the above criteria plus the 52 pieds total length of masonry wall foundation for the guardhouse and cell, and also create a guardhouse with a floor area 15 pieds by 9 pieds, is to use the south wall of the barracks for one side of the building and arrange the rooms as shown in Figure 18. The only variation possible is to reverse the positions of guardhouse and cell by moving the dividing wall to the west. Similarly, the only arrangement that will satisfy the 64 pieds of frame and piquet walling of the bakery and the total length and width of the two buildings, 2 pieds and 24 pieds respectively, is to use the north masonry wall of the guardhouse as a common wall. This arrangement creates a total length of outside walling of 88 pieds which is exactly the length of plank revetement stated by the toisé as covering both buildings.
Although the total horizontal length of piquet walling for the bakery is only 47 pieds, compared with 64 pieds of foundations, the use of 92 pieds of 10 pouce by 10 pouce pine divided into framing posts, plus the gaps for doors and windows, could adequately be made to cover the difference.
The distance from the top of the foundations to the top of the masonry fill under the furring was given as 7 pieds 7 pouces. However, if the toisé is to be believed, the top of the foundation was 1 pied below the top of the foundation trench. This situation would result in walls 6 pieds 7 pouces high less the height of the fill under the furring, leaving a net height of approximately 6 pieds. Since this is abnormally low by comparison with other buildings at Louisbourg, it would seem that the toisé is in error in its account of either the height of the foundations or the depth of their trench.
The roof of the building is mentioned in six items.
| (1) | For one truss: The two principal rafters, the tie-beam, the king post: |
| Combined length, 41 pieds | |
| [Wood] size, 7 pouces by 8 pouces | |
| (2) | The two hip rafters of the hip: |
| Combined length, 46 pieds | |
| Size, 6 pouces by 7 pouces | |
| (3) | The ridge: |
| Length: 33 pieds | |
| Size: 6 pouces | |
| (4) | Purlins, common rafters and furring together: |
| Combined length, 624 pieds | |
| Size, 4 pouces by 4 pouces | |
| (5) | The two faces of the bakery, the guardhouse and the cell joining the barracks: |
| Average length, 32 pieds | |
| Total width: 33 pieds | |
| (6) | The hip: |
| Average width, 12 pieds 6 pouces | |
| Height, 12 pieds |
With these details it is possible to reconstruct thetype of roof and to suggest within a close range of probabilities a number of its details.
The roof had two long
faces and a hip. The length of the ridge, 33 pieds, on a building 32
pieds long, apparently contradicts this. However, the upper part of the roof
would have been framed into the roof of the one and one-half storey barracks at
the north end. At the ridge level this meant that the guardhouse-bakery roof
extended 7 pieds to 8 pieds over the barracks roof, thereby
leaving adequate room for a hip at the other' end.
The total width of the faces of the roof, 33 pieds, and its height of 12
pieds on a 24-pied-wide building, allowing for furring and
overhang, suggests a pitch of approximately 45o on the faces and
approximately 60o on the hip.
The basic frame of the roof consisted of three trusses which consisted of two
principal rafters, running from the wall plate to the ridge, reinforced with a
vertical king post and a horizontal tie-beam. One of these trusses was at the
junction of faces and hip; one probably was placed above the common wall between
guardhouse and bakery, and the third was probably at the junction between
guardhouse and barracks.
Between the trusses the roof was framed with common rafters supported on purlins.
From the total length given for common rafters, purlins and furring, 624
pieds, a reasonable arrangement would have left 2-pied spacing
between rafters, a single row of purlins half way up the sides, and furring
about 3 pieds long. It must be emphasized, however, that these figures
are entirely calculated on the basis of what appears reasonable, and some
variation is possible. The area under the eaves between the rafters and the wall
plate was filled in with masonry. The measurement given for this masonry
suggests that only two side walls were filled and not the hip; or, less likely,
that there was no furring under the hip.
Missing from this account of the roof framing is mention of a wall plate for the
guardhouse. Also missing from the roof items is any mention of a covering
between the shingles and the rafters. This covering could have been either laths
for nailing the shingles, or, more commonly at Louisbourg, boards covering the
whole roof laid either horizontally or vertically.
There were two doors in the guardhouse, one for the guardhouse proper and one
for the cell. The cell door probably was set in the dividing wall for
convenience and security.
The guardhouse door was 5 pieds 8 pouces high by 3 pieds
wide and set in a wooden frame.The door was fashioned of vertical pine planks 2
pouces thick, tenoned at both ends into horizontal hardwood rails. The 40
pieds of 7 pouce by 8 pouce framing given for this and the
prison door allows for a frame consisting of two jambs, a lintel and a sill. The
door for the cell was similar to that for the guardhouse except that it was only
2 pieds 4 pouces wide. Hardware for these doors consisted of 2-pied-long
hinges pivoting on iron pintles, a surface-mounted lock with one or more bolts (serrures
à bosse les verrouils compris), probably for the cell. and two rim-locks (serrures
Bernades) for the guardhouse and bakery. Two latches are listed in the
toisé or the guardhouse, cell and bakery without being specifically assigned
to any of these rooms.
There was one window in the guardhouse, logically on the west wall. The toisé
mentions two chassis for this window, one of pine and the other of oak. In
addition, oak chassis are noted in the bakery. However, elsewhere it is noted
that the frames of the bakery windows were at least partially constructed of
heavy pine posts used in the wall framing. The most logical conclusion to be
drawn is that the word chassis is being used in two senses, one to mean the
window frame and the other to mean the sash. This would lead to the conclusion
that sashes were all oak and the frames were pine, whether constructed from the
wall framing as in the bakery, or made separately as in the guardhouse. The pine
frame for the guardhouse consisted of 16 pieds of 6 pouce by 7
pouce wood, and the oak sash was 3 pieds 8 pouces high by 3
pieds 4 pouces wide. This window was covered with shutters of one-pouce
pine boards.
The hardware list for the guardhouse and bakery does not mention any hinges or
other hardware for the shutters. It does, however, include fiche à vase
hinges for the windows, allowing for two on each side of a double-leaf casement
window: jamb anchors, allowing four per window for holding the frame into the
masonry; and spring bolts, two per window, which normally were fastened
vertically to the top and bottom of the casement sash. The panes of glass were 7
pouces by 8 pouces, which would mean that there were four rows of
five lights. In 1749, the window sash was repaired and glass of a new size, 8
pouces by 8 pouces was installed. [17]
The toisé called for a ceiling stretching throughout both buildings, made of 2-pouce-thick
pine planks nailed to 7 pouce by 8 pouce joists set at a
calculated 4-pied spacing. The guardhouse had a wooden floor made of similar
planks. The only framing mentioned consists of 30 pieds of 6 pouce
by 7 pouce pine joists. This length of framing may have served as a
sleeper along each side of this 15-pied-long room. However, the planks
would have to span a 9-pied gap between them. The most probable
explanation of this anomaly is that other joists were omitted from the toisé or
included in the quantity of joists for the ceiling.
It is not clear whether the list of furnishings given in the toisé is for the
guardhouse alone or for both buildings. The list consisted of three tables 6
pieds by 2 pieds with "leur pieds d'assemblage" (this phrase
is of uncertain meaning but probably refers to horizontal stringers fastened
near the base of the legs to prevent splaying; (see Fig. 11 ), six benches 6
pieds long and a folding table in whitewood (for the bakery?), 4 pieds
by 2 pieds 6 pouces. All except the last item were made of birch.
In addition the prison-and guardhouse had lits de camp 6 pieds
wide made of 2-pouce pine planks resting on a framework of 5 pouce
by 5 pouce pine joists ...
__________
16. AN, Col.,
C11B, Vol. 28, fol. 349, 31 December 1749
17. AN, Col. Section Outre-Mer, DFC, Ordre No. 201, "Toisé ... ," 30 Octobre
1744.